Información de la propiedad
| ID# |
2618-737 |
| Tipo de construcción |
Casa |
| Condición |
Venta |
| Superficie Total m2 |
280 |
| Dormitorios |
3 |
| Cochera |
Garage/Cochera |
| Superficie Cubierta m2 |
194 |
| Baños |
3 |
| Calefacción Central |
Si |
| Plantas |
2 Plantas |
| Antigüedad |
A Estrenar |
| Barrio Privado |
Si |
| Tiene Expensas |
Si |
| Valor de Expensas |
100000 |
| Estado de Conservación |
Excelente |
Descripción
Romanazzi Inmobiliaria vende excelente OPORTUNIDAD PRE-VENTA!!! Hermosas casas de construcción tradicional, ubicadas en Barrio Privado La Bastilla con seguridad y monitoreo con cámaras las 24 hs. El ingreso principal del barrio se encuentra sobre calle Regalado Olguín a muy pocos metros de Avenida Champagnat, Las Heras.
El proyecto cuenta con 3 propiedades sismo resistentes con distintas distribuciones y superficies.
CASA A:
Sup. Terreno: 281 metros
Sup. Cubierta: 194 metros
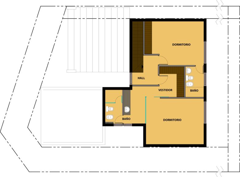
Distribución: en planta baja bicochera, baño con antebaño, cocina y living comedor, galeria con churrasquera, patio, lavanderia con patio de servicio, un dormitorio, jardín frontal. En planta alta 2 dormitorios, ambos con baño en suitte y uno de ellos con vestidor. Fecha de entrega DICIEMBRE 2025 VALOR 230.000
CASA CENTRO :
Sup. Terreno: 275 metros
Sup. Cubierta: 195 metros
Distribución: en planta baja bicochera, baño para visitas, living comedor y cocina, patio con churrasquera y galeria, jardín frontal y lavadero. En planta alta 3 dormitorios, uno principal con baño en suitte y vestidor. Aparte un baño completo mas. Fecha de entrega ABRIL 2026 VALOR 230.000
CASA B:
Sup. Terreno: 277 metros
Sup. Cubierta: 190 metros
Distribución: en planta baja bicochera, baño, cocina y living comedor, galeria, patio, lavanderia con patio de servicio, un dormitorio, jardín frontal. En planta alta 2 dormitorios, ambos con baño en suitte y uno de ellos con vestidor y terraza. TERMINADA VALOR 270.000
INMOBILIARIA ROMANAZZI
Leónidas Aguirre N° 95 - Quinta Sección - Ciudad - Mendoza
inmobiliariaromanazzi@hotmail.com
WWW.INMOROMANAZZI.COM.AR